Spaces

Transforming a Historic Observation Deck into a Modern National Media Headquarters

Confidential Client (Media Company)
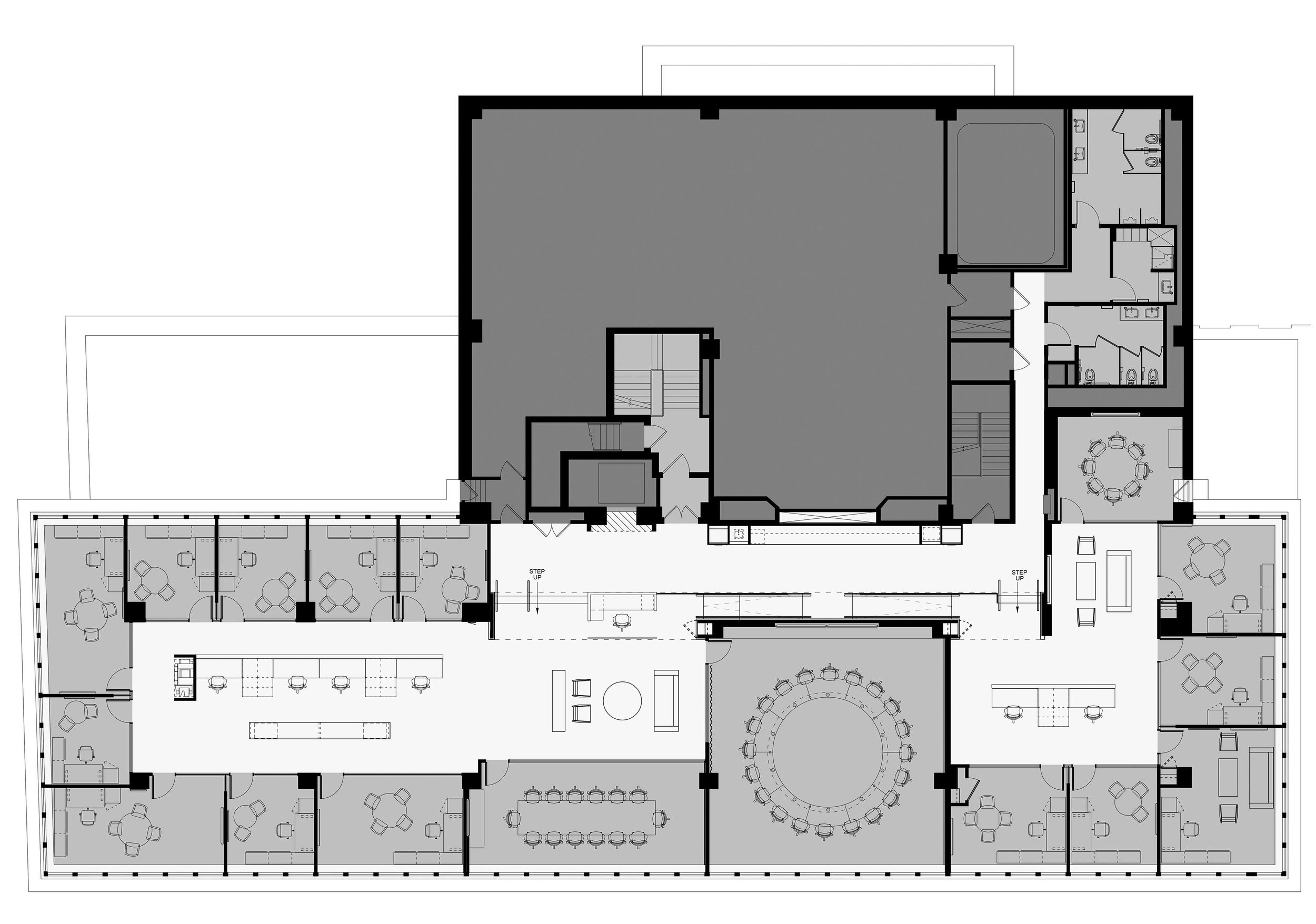
Atop One Prudential Plaza, a once-dormant observation deck has been reborn as a bold national headquarters for a leading media company. geniant helped shape the user experience strategy for the 8,000 square foot transformation, ensuring the design honored both the building’s historic character and the client’s mission-driven ethos. Through a strategic blend of spatial UX, premium materiality, and symbolic storytelling, the space now serves as a daily reminder of freedom of the press and the power of perspective, framed by panoramic views of Chicago and a workspace that feels equally elevated.
Opportunity

For more than two decades, the top floor of One Prudential Plaza sat unused, its dramatic tiered levels and iconic “tallest escalator” relics of its former life as an observation deck. When a prominent media company selected the space for its national HQ, they faced a unique challenge: how to convert an architectural novelty into a high-functioning workplace without losing the energy and symbolism of the location. They needed to accommodate diverse team needs, maximize limited square footage, and reflect the company’s cultural emphasis on transparency, integrity, and legacy.

Solution

geniant helped guide the strategic design process by translating brand values into spatial decisions. We reimagined the user journey from the moment of entry, where etched first amendment quotes greet visitors, through to communal zones, meeting spaces, and executive areas. By removing the tiered observation deck floor and installing a raised platform with underfloor mechanical systems, we created a level, adaptive environment while maintaining visual drama through exposed concrete ceilings and expansive city views. A restrained, neutral palette balances premium finishes with raw textures, offering a media-neutral backdrop for deep focus and collaboration. The boardroom, crowned with a circular light visible from Millennium Park, speaks to transparency and visibility—both core to the client’s identity.

We don’t just build headquarters—we design spaces that honor purpose. For this project, we translated the mission of free speech and the responsibility of media into an environment defined by space, experience, and flow.

Transforming a Historic Observation Deck into a Modern National Media Headquarters

2018

Related Works

Transforming Friction into Flow: Elevating Visitor and Conference Room Experiences

Case Study

Redefining Mobile Banking for Global Citizens

Case Study

A Suite of Possibilities: Marketing the Future of 2 Prudential Plaza

Case Study

Igniting the Cannabis Retail Experience Through Fire, Craft, and Contrast

Case Study

More Than a Dispensary: Designing a Radical New Standard for Cannabis

Case Study

Redefining Workplace Experience: Where Creativity Meets Boutique Hospitality

Case Study

Transforming Contrast into Cohesion: A Boutique Amenities Experience in a Corporate Tower

Case Study

Bringing Tactile Emotion to Loft Office Leasing at 111 N Canal

Case Study

From Traditional to Transformational: Reimagining Workplace Culture for a Legacy Financial Brand

Case Study

Redefining the Office: How a Modern Suite Accelerated Leasing and Elevated Brand Perception

Case Study

A Seven-Floor Transformation: How a Legacy Organization Reimagined Its Downtown Grand Rapids Headquarters for a Multi-Generational, Interdisciplinary Future

Case Study

Designing a Smart, Human-Centric HQ for a Post-Growth Tech Firm

Case Study

Reimagining Public Access to Art Through Spatial Experience and Strategic Design

Case Study

Creating a Locally Rooted, Globally Scalable Smart Workplace in the Heart of Chicago

Case Study

Scaling Culture and Connectivity for a Tech Forward HQ

Case Study

Designing a Distinctive Lobby and Amenity Experience in Chicago’s Fastest-Growing Innovation District

Case Study

From Creative Agency to Creative Experience: Redesigning Pivot’s Workplace and Digital Touchpoints

Case Study

Elevating the Showroom: From Display Space to Experiential Brand

Case Study

Redefining Digital Experiences for Wealth Management

Case Study

Redefining Engagement: Gamified Events That Captivate Audiences

Case Study

Redesigning for Reach: A Fintech’s Leap into the U.S. Market

Case Study

Opening Up Transparency: A Wealth Management Group’s Office Transformation

Case Study

Transforming Data Management with a User-Centric Website Redesign

Case Study

A Sophisticated, Seamless Space for Riveron Consulting

Case Study

Creating a Sustainable Workplace with Environmental Health and Safety

Case Study

Revitalizing Newcastle's Workspace for a Modern Era

Case Study

Enhancing Financial Planning Experience for a Leading Financial Services Platform

Case Study

Innovation & Stability: G Squared’s Dynamic Workplace

Case Study

Bringing Mike’s Hard Lemonade Home: Designing a Branded HQ in the Heart of Chicago

Case Study

Transforming Legal Investigations with AI-Powered Solutions

Case Study

Scaling Culture and Precision: Transforming a Trading HQ for the Next Phase of Growth

Case Study

Doubling Workspace Capacity While Setting the Blueprint for Growth

Case Study

A Garden for Listening: Transforming a Vacant Lot into an Immersive Sound and Reflection Experience

Case Study

Revolutionizing Digital Compliance Management

Case Study

Transforming User Experience and Visual Design for a Leading Financial Platform

Case Study

From Monumental to Modern: Reimagining 1 East Wacker for Today’s Workforce

Case Study

Transforming Restaurant Management: A Seamless Digital Solution

Case Study

Designing for Wellness: A Workspace that Moves People—Literally

Case Study

Designing a Charismatic Family Office for Legacy, Culture, and Collaboration

Case Study

Transforming Virtual Therapy: Aklos Health’s Digital Leap

Case Study

Transforming Financial Management: A Complete 360° Digital Solution

Case Study

Transforming Tax Compliance: Enhancing User Experience and Engagement

Case Study

Redefining Air Travel: How Delta Elevated UX, Brand Experience, and Design Consistency Across 300+ Customer Touchpoints

Case Study

Designing Elevated Comfort: Transforming Business Class with Bold Identity

Case Study

Redefining Travel: Enhancing Passenger Experience Through Human-Centered Design

Case Study

Designing Consistency: Reimagining Service to Elevate the Global Retail Experience

Case Study

Driving Reconnection: Designing an EV Experience That Inspires Ecological Adventure

Case Study

Reimagining Urban Mobility: From Object to Service

Case Study

Revolutionizing Cabin Design for a New Era of Passenger Experience

Case Study

Leading with Energy: Driving Investor Confidence Through Strategic Brand Evolution

Case Study

Building a Future Legacy: Uniting Brand, Space, and Culture

Case Study

Designing a Scalable, Sustainable Future for Last-Mile Delivery

Case Study

Shaping the Future City: A Vision for Global Urban Mobility

Case Study

Revolutionizing Freight: Accelerating Zero-Emission Long-Haul Transport Innovation

Case Study

Refreshing Employer Branding to Attract the Next Generation of Leaders

Case Study

Decarbonizing Aviation: Designing the Future of Hydrogen-Powered Flight

Case Study

Shaping the Future of Consumer Technology Through Responsible Design

Case Study