Spaces

Creating a Locally Rooted, Globally Scalable Smart Workplace in the Heart of Chicago

Siemens
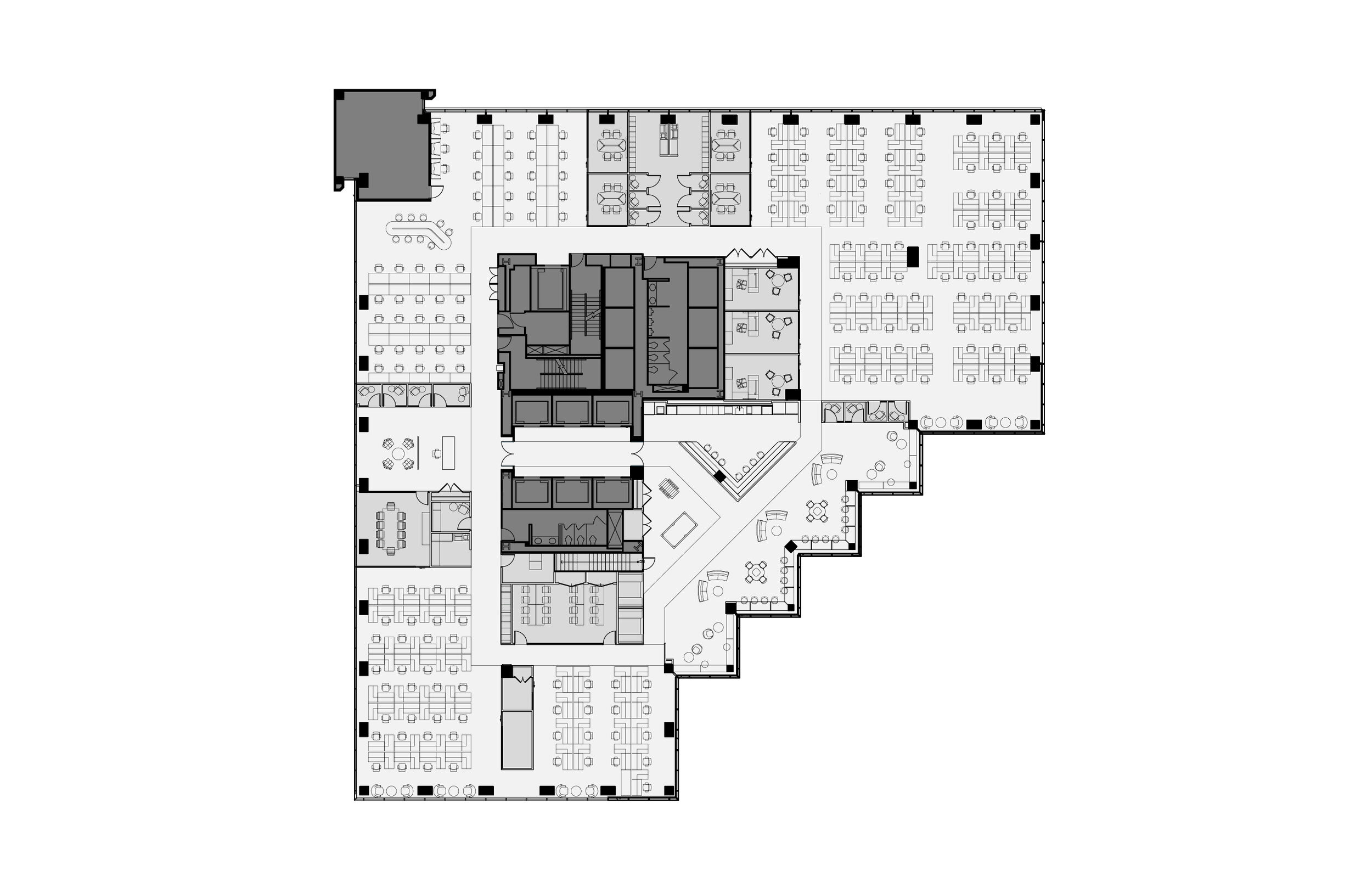
As a global technology leader spanning energy, infrastructure, and healthcare, Siemens wanted its Chicago office to reflect its innovation DNA while showcasing its own intelligent workplace products. In collaboration with Eastlake Studio, geniant helped redesign the office experience to be more intuitive, flexible, and emotionally engaging, anchored in place, driven by data, and optimized for evolving user needs. The final 22,000-square-foot space not only enhances employee well-being and connection to the city, but also functions as a living showroom for Siemens’ own smart lighting and automation technologies.
Opportunity

Siemens needed a regional workplace that would not only serve hybrid employees and visitors, but also demonstrate how its technology translates into everyday human experience. The challenge was designing a space that balanced functionality with storytelling—connecting global brand values to local geography, while maximizing flexibility, daylight, and usability across a unique, sawtooth-shaped floorplate. The company also needed to ensure the space supported both neighborhood-style team zones and transient workstyles through hotelling options.

Solution

Geniant led the strategic reframing of the workplace experience—focusing on user journeys, emotional touchpoints, and tech-enabled flow. We helped structure spatial pathways as metaphors for the Chicago River, guiding movement and connection through the office and reinforcing local identity. Our team supported wayfinding clarity and helped translate Siemens’ product capabilities, especially lighting controls, into tangible UX benefits for end users. Breakout zones were designed to encourage pause and play, with layered materials, color, and form supporting both cognitive reset and collaboration. geniant ensured each design choice tied back to broader enterprise goals around brand clarity, product visibility, and employee satisfaction.

We create spaces that balance local identity with brand essence—like blending the spirit of Chicago with the innovation of Siemens. By translating complex systems into intuitive experiences, we ensure every design decision works smarter.

Creating a Locally Rooted, Globally Scalable Smart Workplace in the Heart of Chicago

Industry
Capabilities

Related Works

Transforming Friction into Flow: Elevating Visitor and Conference Room Experiences

Case Study

Redefining Mobile Banking for Global Citizens

Case Study

A Suite of Possibilities: Marketing the Future of 2 Prudential Plaza

Case Study

Igniting the Cannabis Retail Experience Through Fire, Craft, and Contrast

Case Study

More Than a Dispensary: Designing a Radical New Standard for Cannabis

Case Study

Redefining Workplace Experience: Where Creativity Meets Boutique Hospitality

Case Study

Transforming Contrast into Cohesion: A Boutique Amenities Experience in a Corporate Tower

Case Study

Bringing Tactile Emotion to Loft Office Leasing at 111 N Canal

Case Study

From Traditional to Transformational: Reimagining Workplace Culture for a Legacy Financial Brand

Case Study

Redefining the Office: How a Modern Suite Accelerated Leasing and Elevated Brand Perception

Case Study

A Seven-Floor Transformation: How a Legacy Organization Reimagined Its Downtown Grand Rapids Headquarters for a Multi-Generational, Interdisciplinary Future

Case Study

Designing a Smart, Human-Centric HQ for a Post-Growth Tech Firm

Case Study

Reimagining Public Access to Art Through Spatial Experience and Strategic Design

Case Study

Scaling Culture and Connectivity for a Tech Forward HQ

Case Study

Designing a Distinctive Lobby and Amenity Experience in Chicago’s Fastest-Growing Innovation District

Case Study

From Creative Agency to Creative Experience: Redesigning Pivot’s Workplace and Digital Touchpoints

Case Study

Elevating the Showroom: From Display Space to Experiential Brand

Case Study

Transforming a Historic Observation Deck into a Modern National Media Headquarters

Case Study

Redefining Digital Experiences for Wealth Management

Case Study

Redefining Engagement: Gamified Events That Captivate Audiences

Case Study

Redesigning for Reach: A Fintech’s Leap into the U.S. Market

Case Study

Opening Up Transparency: A Wealth Management Group’s Office Transformation

Case Study

Transforming Data Management with a User-Centric Website Redesign

Case Study

A Sophisticated, Seamless Space for Riveron Consulting

Case Study

Creating a Sustainable Workplace with Environmental Health and Safety

Case Study

Revitalizing Newcastle's Workspace for a Modern Era

Case Study

Enhancing Financial Planning Experience for a Leading Financial Services Platform

Case Study

Innovation & Stability: G Squared’s Dynamic Workplace

Case Study

Bringing Mike’s Hard Lemonade Home: Designing a Branded HQ in the Heart of Chicago

Case Study

Transforming Legal Investigations with AI-Powered Solutions

Case Study

Scaling Culture and Precision: Transforming a Trading HQ for the Next Phase of Growth

Case Study

Doubling Workspace Capacity While Setting the Blueprint for Growth

Case Study

A Garden for Listening: Transforming a Vacant Lot into an Immersive Sound and Reflection Experience

Case Study

Revolutionizing Digital Compliance Management

Case Study

Transforming User Experience and Visual Design for a Leading Financial Platform

Case Study

From Monumental to Modern: Reimagining 1 East Wacker for Today’s Workforce

Case Study

Transforming Restaurant Management: A Seamless Digital Solution

Case Study

Designing for Wellness: A Workspace that Moves People—Literally

Case Study

Designing a Charismatic Family Office for Legacy, Culture, and Collaboration

Case Study

Transforming Virtual Therapy: Aklos Health’s Digital Leap

Case Study

Transforming Financial Management: A Complete 360° Digital Solution

Case Study

Transforming Tax Compliance: Enhancing User Experience and Engagement

Case Study

Redefining Air Travel: How Delta Elevated UX, Brand Experience, and Design Consistency Across 300+ Customer Touchpoints

Case Study

Designing Elevated Comfort: Transforming Business Class with Bold Identity

Case Study

Redefining Travel: Enhancing Passenger Experience Through Human-Centered Design

Case Study

Designing Consistency: Reimagining Service to Elevate the Global Retail Experience

Case Study

Driving Reconnection: Designing an EV Experience That Inspires Ecological Adventure

Case Study

Reimagining Urban Mobility: From Object to Service

Case Study

Revolutionizing Cabin Design for a New Era of Passenger Experience

Case Study

Leading with Energy: Driving Investor Confidence Through Strategic Brand Evolution

Case Study

Building a Future Legacy: Uniting Brand, Space, and Culture

Case Study

Designing a Scalable, Sustainable Future for Last-Mile Delivery

Case Study

Shaping the Future City: A Vision for Global Urban Mobility

Case Study

Revolutionizing Freight: Accelerating Zero-Emission Long-Haul Transport Innovation

Case Study

Refreshing Employer Branding to Attract the Next Generation of Leaders

Case Study

Decarbonizing Aviation: Designing the Future of Hydrogen-Powered Flight

Case Study

Shaping the Future of Consumer Technology Through Responsible Design

Case Study